Javna dražba za stavbna zemljišča v Žabčah napovedana za 21. maj
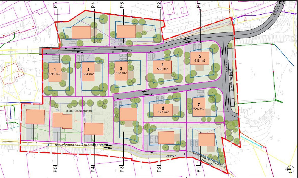
Občina Tolmin je v začetku marca najavila javno dražbo za prodajo sedmih gradbenih parcel na zahodnem robu naselja Žabče. Gre za stavbna zemljišča na območju Občinskega podrobnega prostorskega načrta (OPPN) Žabče, ki so namenjena za stanovanjsko gradnjo. Javna dražba se bo izvršila v sredo, 21. maja, v popoldanskem času. Dražbeni razglas, v katerem bodo opredeljeni vsi pogoji in podrobnosti javne dražbe, bo objavljen en mesec pred izvršitvijo. »Končno je nastopil čas, ko lahko zazidljive stanovanjske parcele v Žabčah dobijo nove lastnike. Gre za pomemben korak pri reševanju stanovanjskih potreb v Posočju,« je zadovoljstvo izrazil župan Alen Červ. Kot je še pojasnil, »OPPN določa 15 novih stavbnih parcel. Poleg treh že obstoječih objektov bodo pet parcel odkupili trenutni delni lastniki, sedem pa jih gre na javno dražbo. Posebna zahvala gre mojim sodelavcem iz pravne službe, saj je bilo urejanje zemljiško-lastniških odnosov zahtevno in dolgotrajno.«
Predmet prodaje bo sedem gradbenih parcel površine 526–632 m2, ki so prikazane na priloženi skici. Parcelne številke zemljišč in površine posameznih gradbenih parcel navajamo v objavi na spletni strani občine, njihovo lokacijo v naravi in natančnejše podatke o zemljiščih pa lahko interesenti preverijo na javnih portalih PISO (Prostorski informacijski sistem občin) in eProstor.



